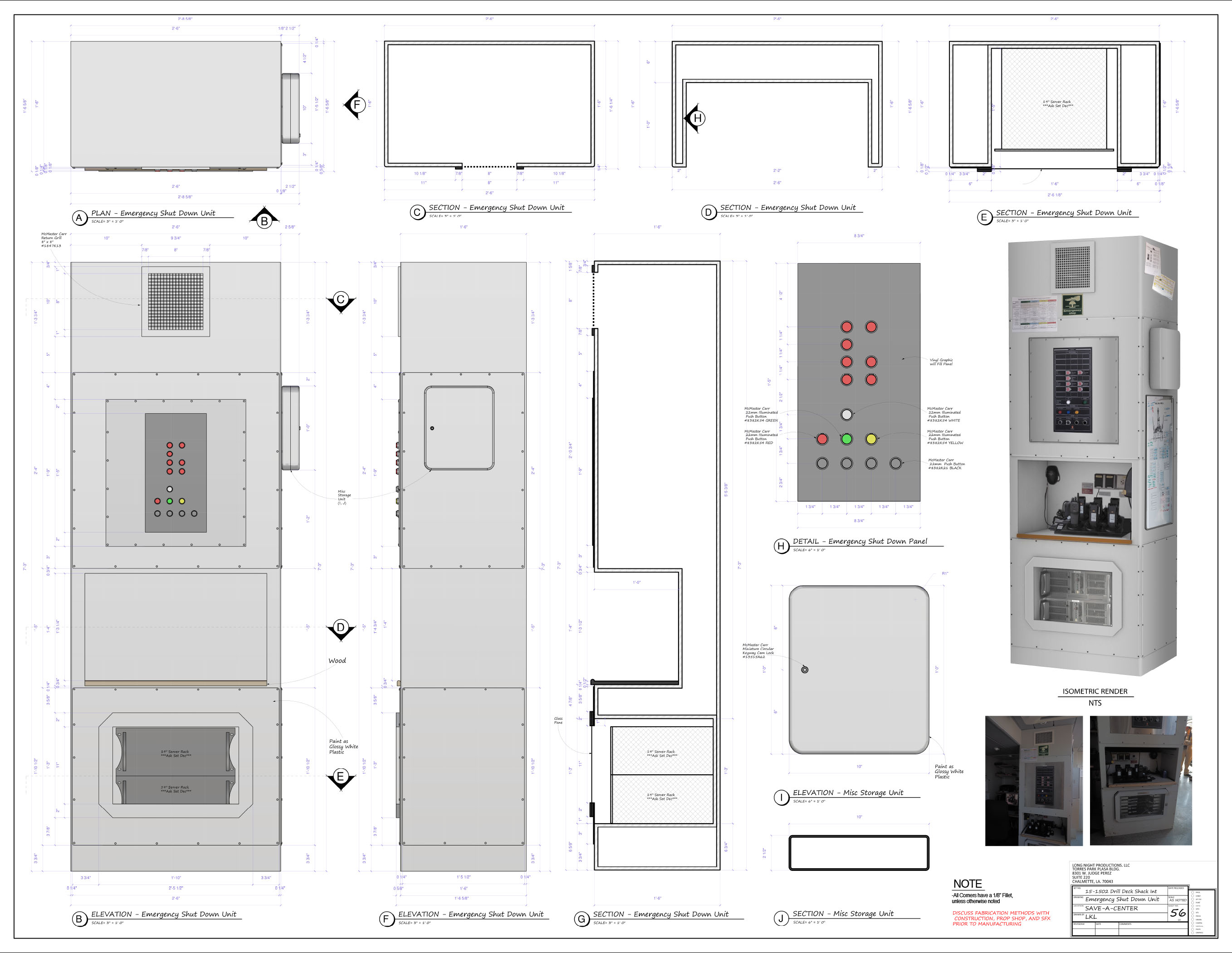
SET DESIGN / CAD